Alila

Castel
Local Market
£725,000
Under Offer With Cranfords
3
1
3

Cranfords is delighted to offer Alila to the local market, a beautifully maintained chalet bungalow in true move-in condition. Nestled in a quiet, sought-after lane just minutes from Cobo and its excellent amenities, this property presents a rare and appealing opportunity. The ground floor boasts generous living space, including a large, bright, and airy kitchen/diner perfect for family life or entertaining, complemented by a cosy lounge/snug. A convenient W/C doubles as a utility area, and there's also a versatile single bedroom currently used as a home office. Upstairs, you’ll find two well-proportioned double bedrooms and a modern shower room. To the rear, the garden enjoys excellent sun exposure and features raised decking and a hot tub, the perfect place to relax and enjoy the property's unique, picturesque sunset views. Viewing is highly recommended, contact Cranfords today on 243878 to arrange yours.

Key Facts

3
1
3
  • True Move-in Condition
  • Situated In A Quiet Lane
  • Short Stroll To Coastal Paths & Beaches
  • Parking For 3 Vehicles
  • Detached Chalet Bungalow
  • Immaculate Presentation
  • Low Maintenance Rear Garden
  • Separate W/C & Utility
  • TRP 108
  • LR3328

Contact Cranfords to book a viewing

Call 01481 243878 or Contact Us

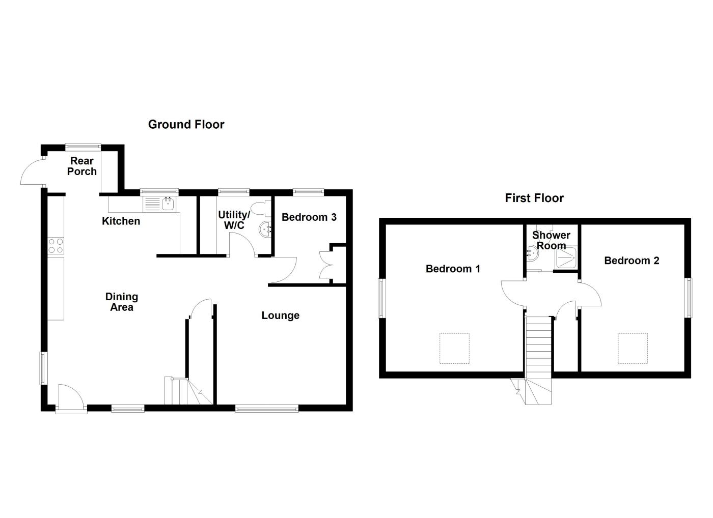
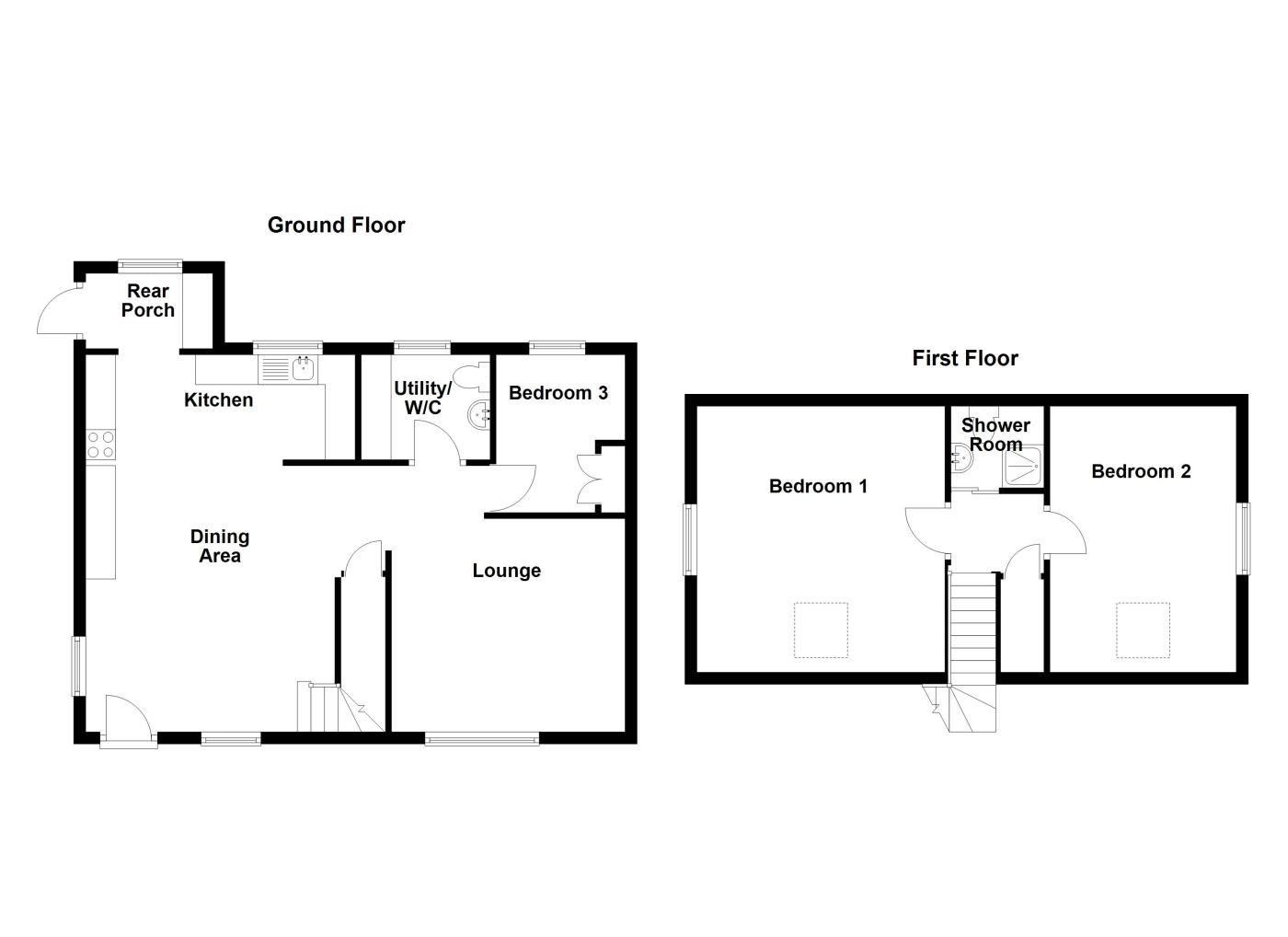
Summary of Accommodation

Ground Floor

Dining Room
19' 2" x 17' 3"
(5.84m x 5.26m)
Kitchen
Appliances include 4 ring hob and oven with extractor unit, Smeg dishwasher, Fridge and freezer, Wine cooler
14' 8" x 5' 9"
(4.47m x 1.75m)
Rear Porch
7' 0" x 4' 2"
(2.13m x 1.27m)
Utility/W/C
7' 1" x 5' 6"
(2.16m x 1.68m)
Bedroom 3
8' 8" x 7' 1"
(2.64m x 2.16m)
Lounge
12' 9" x 9' 8"
(3.89m x 2.95m)

First Floor

Bedroom 1
14' 7" x 12' 9"
(4.45m x 3.89m)
Bedroom 2
14' 7" x 9' 8"
(4.45m x 2.95m)
Shower Room
6' 8" x 4' 8"
(2.03m x 1.42m)

Services

Mains Electricity and water and drainage. Oil central heating.

Price Includes

Floor coverings, curtains/blinds, and light fittings. Appliances as detailed.

Possession

By arrangement.

Viewing

Strictly by appointment.
-
If the recipient of these details should be party to negotiations or actions which seek to preclude, or are contrary to, the interests of CRANFORDS ESTATE AGENCY LTD, as selling agents, they may be liable for any fees which would otherwise have been due to CRANFORDS ESTATE AGENCY LTD.

These particulars do not constitute any part of an offer or contract. No responsibility is accepted as to the accuracy of these particulars or statements made by our staff concerning the above property. Any intending purchaser must satisfy himself to the correctness of such statements and particulars. All negotiations to be conducted.