Augusta

St Sampson
Local Market
£885,000
New To Market
4
4
5

Newly offered to the local market, Augusta is an impressive three-bedroom bungalow situated in a quiet clos just off Vale Road, conveniently positioned close to a wide range of local amenities. The property has been thoughtfully renovated over the years by the current owners and is presented in excellent condition throughout. The main accommodation offers three generously sized bedrooms, two of which benefit from en-suite facilities, providing comfort and practicality for modern family living. A spacious lounge features a stylish multi-fuel fireplace, creating a warm and inviting atmosphere, while a spiral staircase leads to an additional attic room, ideal for use as a home office or for one to fully convert and develop into a master bedroom. A true highlight of the home is the stunning kitchen/diner, superbly equipped and designed with a central island as it's focal point. French doors open directly onto the garden, creating an ideal space for entertaining and seamless indoor-outdoor living. Further enhancing the appeal, Augusta includes an additional wing which has been finished to an immaculate standard and offers excellent potential for multi-generational living or as a rental opportunity. Externally, the property benefits from a low-maintenance garden and ample parking to the front. Viewing is highly recommended to fully appreciate all that Augusta has to offer. To arrange your appointment, please contact Cranfords on 01481 243878.

Key Facts

4
4
5
  • True Move-In Condition
  • Ideal Family Home Or Downsize Opportunity
  • Has A One Bedroom Wing
  • Nearby Local Amenities
  • Situated On A Quiet Clos
  • Ample Parking
  • Rear Garden
  • Scope To Go Up Into The Loft
  • TRP 154
  • LR3362

Contact Cranfords to book a viewing

Call 01481 243878 or Contact Us

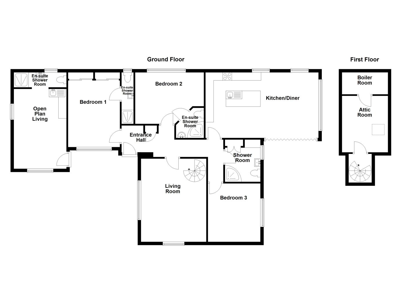
Summary of Accommodation

Ground Floor

Entrance Hall
5' 5" x 20' 8" x 8' 6"
(6.30m x 2.59m x 1.65m)
Bedroom 1
Fitted wardrobes.
15' 2" x 10' 6"
(4.62m x 3.20m)
En-Suite Shower Room
9' 9" x 2' 5"
(2.97m x 0.74m)
Bedroom 2
14' 0" x 10' 0"
(4.27m x 3.05m)
En-Suite Shower Room
6' 0" x 5' 6"
(1.83m x 1.68m)
Lounge
15' 8" x 12' 0"
(4.78m x 3.66m)
Bedroom 3
11' 8" x 10' 8"
(3.56m x 3.25m)
Family Shower Room
8' 7" x 6' 8"
(2.62m x 2.03m)
Kitchen/Diner
Appliances include Neff electric oven, Neff electric hob, Neff microwave, Neff fridge, Neff freezer, Siemans dish washer & Falmec extractor fan.
23' 0" x 11' 8"
(7.01m x 3.56m)

First Floor

Attic Room
11' 6" x 9' 4"
(3.51m x 2.84m)

Services

Mains electricity, water and drainage. Electric central heating.

Price Includes

Floor coverings, curtains/blinds, appliances as listed and light fittings.

Possession

By arrangement.

Viewing

Strictly by appointment.

Please Note

-
If the recipient of these details should be party to negotiations or actions which seek to preclude, or are contrary to, the interests of CRANFORDS ESTATE AGENCY LTD, as selling agents, they may be liable for any fees which would otherwise have been due to CRANFORDS ESTATE AGENCY LTD.

These particulars do not constitute any part of an offer or contract. No responsibility is accepted as to the accuracy of these particulars or statements made by our staff concerning the above property. Any intending purchaser must satisfy himself to the correctness of such statements and particulars. All negotiations to be conducted.