Hideaway

St Peter Port
Local Market
£495,000
Under Offer
3
1
0

A beautifully modernised character home just a short stroll from the heart of town. Cranfords are delighted to offer Hideaway, a charming terraced property located in the ever-popular parish of St Peter Port. Just a brief walk from the vibrant city centre, this inviting home perfectly balances period character with tasteful, contemporary updates. The property offers three well-proportioned bedrooms, a modern family bathroom, and a separate WC, making it ideal for professionals, young families, or those looking to downsize without compromising on space or style. Lovingly modernised throughout, Hideaway blends traditional charm with stylish décor and practical living. The low maintenance garden provides a peaceful outdoor retreat, while on-street parking is available nearby, including the conveniently located Salerie car park. There is currently a large car parking space rented nearby for £110 per month and would be transferable to the new owner if needed. This is a rare opportunity to acquire a turnkey home in a sought-after location, just minutes from the amenities, restaurants, and offices of St Peter Port. Viewings are highly recommended. Contact Cranfords on 243878 to arrange your viewing of Hideaway today!

Key Facts

3
1
0
  • Terraced House
  • Three Bedrooms
  • Low Maintenance Garden
  • On Street Parking In The Area
  • Salerie Car Park Close By
  • Recently Modernised Throughout
  • £110 Rented Parking Space Per Month

Contact Cranfords to book a viewing

Call 01481 243878 or Contact Us

Summary of Accommodation

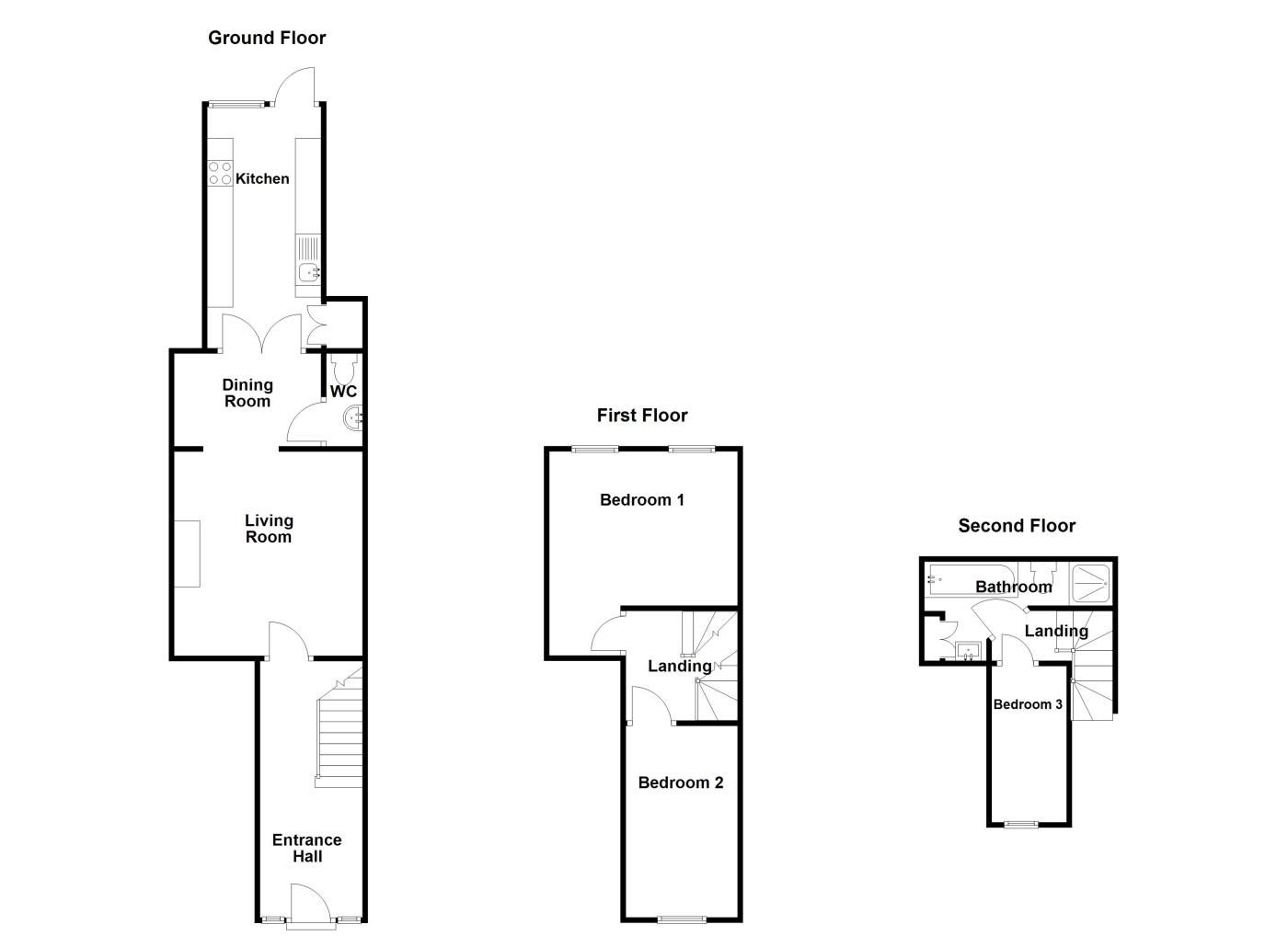
Ground Floor

Entrance Hall
16' 5" x 6' 7"
(5.00m x 2.01m)
Separate WC
6' 7" x 2' 7"
(2.01m x 0.79m)
Lounge
13' 1" x 11' 10"
(3.99m x 3.61m)
Dining Room
11' 6" x 5' 11"
(3.51m x 1.80m)
Kitchen
.
Appliances include integrated fridge and freezer, Hotpoint oven with hob and extractor fan, Hotpoint dishwasher and Hotpoint washing machine.
15' 5" x 7' 3"
(4.70m x 2.21m)

First Floor

Landing
6' 3" x 3' 3"
(1.91m x 0.99m)
Bedroom 2
12' 2" x 7' 3"
(3.71m x 2.21m)
Bedroom 1
13' 9" x 11' 10"
(4.19m x 3.61m)

Second Floor

Landing
5' 3" x 2' 11"
(1.60m x 0.89m)
Bedroom 3
10' 2" x 7' 3"
(3.10m x 2.21m)
Bathroom
Price Includes
Floor coverings, curtains/blinds, and light fittings. Appliances as detailed.
Possession
By arrangement
Viewing
Strictly by appointment
Please Note
If the recipient of these details should be party to negotiations or actions which seek to preclude, or are contrary to, the interests of CRANFORDS ESTATE AGENCY LTD, as selling agents, they may be liable for any fees which would otherwise have been due to CRANFORDS ESTATE AGENCY LTD.

These particulars do not constitute any part of an offer or contract. No responsibility is accepted as to the accuracy of these particulars or statements made by our staff concerning the above property. Any intending purchaser must satisfy himself to the correctness of such statements and particulars. All negotiations to be conducted.