Les Oiseaux Lodge

St Andrew
Local Market
£865,000
New To Market
4
2
5

Cranfords are delighted to present Les Oiseaux to the local market, ideally situated on a quiet road on the outskirts of St Andrews. This deceptively spacious four-bedroom semi-detached home offers exceptional flexibility to suit a variety of lifestyle needs. Full of charm and character, the property features attractive details such as arched doorways and sections of flagstone flooring, while still providing ample opportunity for a new owner to personalise and make it their own. Although well maintained throughout, there are a few areas that would benefit from some light updating. This wonderful family home boasts generous parking and enjoys both front and rear sunny, secure gardens, perfect for entertaining, as well as being safe for children and pets.

Early viewing is highly recommended to fully appreciate all that this unique home has to offer.

Key Facts

4
2
5
  • 4 Bedrooms
  • Generous Living Space
  • Excellent Character Throughout
  • TRP 217
  • Move in Condition Throughout
  • Ample Parking
  • Great Family Home
  • Main Drain

Contact Cranfords to book a viewing

Call 01481 243878 or Contact Us

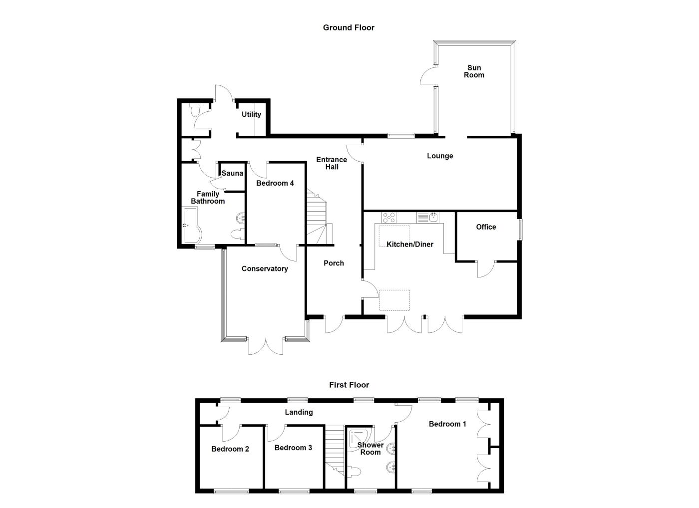
Summary of Accommodation

Ground Floor

Entrance Porch
8' 9" x 8' 0"
(2.67m x 2.44m)
Entrance Hall
Max.
15' 1" x 7' 6"
(4.60m x 2.29m)
Kitchen/Diner
Appliances include Kuperbusch five ring induction hob, Beko double oven, Hotpoint washing machine & American style fridge/freezer.
22' 6" x 15' 9"
(6.86m x 4.80m)
Lounge
20' 0" x 12' 4"
(6.10m x 3.76m)
Sun Room
16' 0" x 10' 8"
(4.88m x 3.25m)
Bedroom 4
11' 6" x 8' 6"
(3.51m x 2.59m)
Sun Room
13' 3" x 10' 7"
(4.04m x 3.23m)