Manhattan

St Sampson
Local Market
£864,000
Under Offer With Cranfords
5
2
1

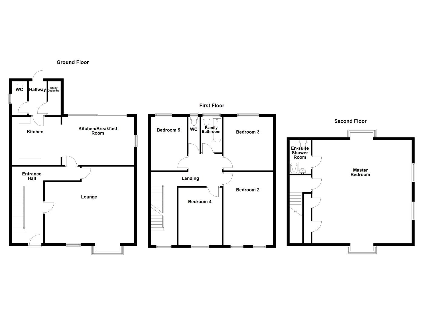
Ideally located on Rue des Monts, just a stone’s throw from the picturesque Delancey Park and a short stroll to the Bridge, this substantial semi-detached home offers generous living space across three floors. To the front of the property, there is private off-street parking for one vehicle, in addition to ample on-street parking nearby. Upon entering, you're welcomed by a warm and inviting family home atmosphere. The ground floor comprises a bright living room with a stylish working fireplace, a dining area with sliding doors opening onto a low-maintenance garden and workshop, a well-equipped kitchen, a convenient downstairs W/C, and a utility cupboard. The first floor hosts four well-proportioned bedrooms, all capable of accommodating double beds, alongside a family bathroom with a separate W/C. The top floor is dedicated to a spacious master bedroom, complete with fitted wardrobes, an en-suite shower room, and beautiful elevated views across Delancey Park. Early viewing is highly recommended to fully appreciate all that Manhattan has to offer.

Key Facts

5
2
1
  • Ideal Family Home
  • Move-in Condition
  • Scope To Create Extra Parking
  • Beautiful Views Over Delancey Park
  • TRP 256
  • Few Minutes Walk To The Bridge
  • Separate Ground Floor W/C
  • Generous Bedroom Sizes
  • LR3322

Contact Cranfords to book a viewing

Call 01481 243878 or Contact Us

Summary of Accommodation

Ground Floor

Entrance Hall
Max
14' 5" x 12' 0"
(4.39m x 3.66m)
Living Room
19' 0" x 18' 0"
(5.79m x 5.49m)
Dining Area
Kitchen
Appliances include Belling 4 ring hob, Whirlpool oven, Candy washing machine, Hotpoint tumble dryer, Hotpoint dish washer, Hoover fridge/freezer & Belling extractor fan.
11' 5" x 11' 0"
(3.48m x 3.35m)
Separate W/C
6' 0" x 2' 5"
(1.83m x 0.74m)
Utility

First Floor

Bedroom 5
10' 0" x 8' 0"
(3.05m x 2.44m)
Bedroom 4
11' 0" x 9' 5"
(3.35m x 2.87m)
Bedroom 3
11' 0" x 8' 0"
(3.35m x 2.44m)
Bedroom 2
15' 0" x 11' 0"
(4.57m x 3.35m)
Bathroom
8' 0" x 5' 0"
(2.44m x 1.52m)
Separate W/C
8' 0" x 3' 0"
(2.44m x 0.91m)

Second Floor

Master Bedroom
20' 0" x 20' 0"
(6.10m x 6.10m)
En-Suite Bathroom
8' 0" x 6' 0"
(2.44m x 1.83m)

Services

Mains electricity, water and drainage. Gas central heating.

Price Includes

Floor coverings, curtains/blinds, appliances as listed and light fittings.

Possession

By arrangement.

Viewing

Strictly by appointment.

Please Note

-
If the recipient of these details should be party to negotiations or actions which seek to preclude, or are contrary to, the interests of CRANFORDS ESTATE AGENCY LTD, as selling agents, they may be liable for any fees which would otherwise have been due to CRANFORDS ESTATE AGENCY LTD.

These particulars do not constitute any part of an offer or contract. No responsibility is accepted as to the accuracy of these particulars or statements made by our staff concerning the above property. Any intending purchaser must satisfy himself to the correctness of such statements and particulars. All negotiations to be conducted.