Offered to the local market is Ommadawn situated in the North of the island and just minutes from the coast. This 4 bedroom family home has light and spacious living throughout and has recently benefitted from a new kitchen and dining area. This well maintained property offers ample parking to the front of the property as well as an enclosed garden, decked area and 2 x store sheds to the rear making this a great rounded package.
Key Facts
4
2
4
- 2 X Store Sheds
- Enclosed Garden & Decking Area
- Close to Local Amenities
- TRP 131
- LR3193
Contact Cranfords to book a viewing
Call 01481 243878 or Contact UsSummary of Accommodation
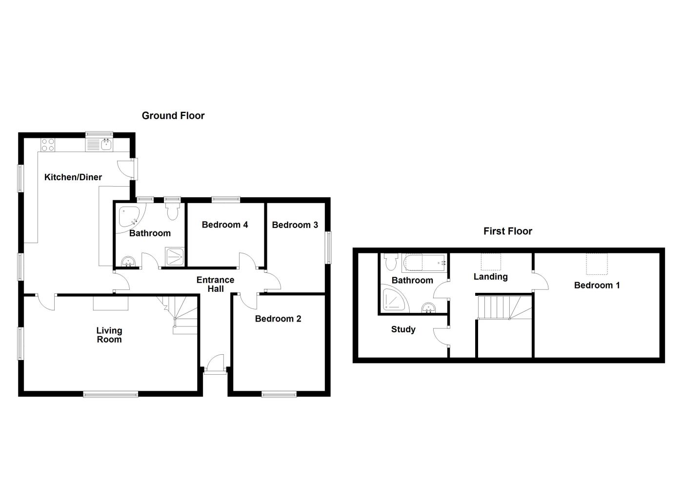
Ground Floor
Entrance hall
11' 6" x 3' 7"
(3.51m x 1.09m)
Bedroom 2
11' 4" x 10' 10"
(3.45m x 3.30m)
Bedroom 3
11' 3" x 6' 6"
(3.43m x 1.98m)
Bedroom 4
8' 2" x 7' 11"
(2.49m x 2.41m)
Bathroom
8' 0" x 7' 7"
(2.44m x 2.31m)
Kitchen/Dining Room
Appliances include Rangemaster oven, Smeg integrated dishwasher, integrated fridge/freezer, integrated Blomberg washing machine, tumble dryer and chest freezer.
18' 5" x 11' 4"
(5.61m x 3.45m)
Lounge
Working fireplace
20' 6" x 11' 5"
(6.25m x 3.48m)
First Floor
Study
11' 2" x 5' 5"
(3.40m x 1.65m)
Bathroom
7' 7" x 7' 1"
(2.31m x 2.16m)
Bedroom 1
Fitted wardrobe units.
15' 1" x 12' 0"
(4.60m x 3.66m)
Services
Mains water, drains, electric. Oil fired central heating.
Price Includes
Floor coverings and light fittings. Appliances as detailed.
Possession
By arrangement.
Viewing
Strictly by appointment.
Please Note
If the recipient of these details should be party to negotiations or actions which seek to preclude, or are contrary to, the interests of CRANFORDS ESTATE AGENCY LTD, as selling agents, they may be liable for any fees which would otherwise have been due to CRANFORDS ESTATE AGENCY LTD.
These particulars do not constitute any part of an offer or contract. No responsibility is accepted as to the accuracy of these particulars or statements made by our staff concerning the above property. Any intending purchaser must satisfy himself to the correctness of such statements and particulars. All negotiations to be conducted.
These particulars do not constitute any part of an offer or contract. No responsibility is accepted as to the accuracy of these particulars or statements made by our staff concerning the above property. Any intending purchaser must satisfy himself to the correctness of such statements and particulars. All negotiations to be conducted.