Pres de Fauville

St Sampson
Local Market
£850,000
Under Offer With Cranfords
4
3
5

Cranfords are delighted to offer Pres De Fauville, a charming two-bedroom detached cottage with an additional two-bedroom wing, ideally located on Les Canus in St Sampson offering ample parking and situated nearby many local amenities. Pres De Fauville is presented in move-in condition however would benefit from modernization throughout. The property showcases an abundance of character features throughout, blending traditional charm with modern comfort. Externally, Pres De Fauville boasts an attractive rear garden which is complete with a large summer house, perfect entertaining & storage. A rare opportunity to acquire a versatile and well maintained home in a convenient yet peaceful location. For more information or to arrange a viewing, please contact Cranfords on 243878.

Key Facts

4
3
5
  • Detached Cottage
  • 2 Bedroom Wing
  • Character Features Throughout
  • Rear Garden & Large Summer House
  • Ample Parking
  • TRP 229
  • LR3342

Contact Cranfords to book a viewing

Call 01481 243878 or Contact Us

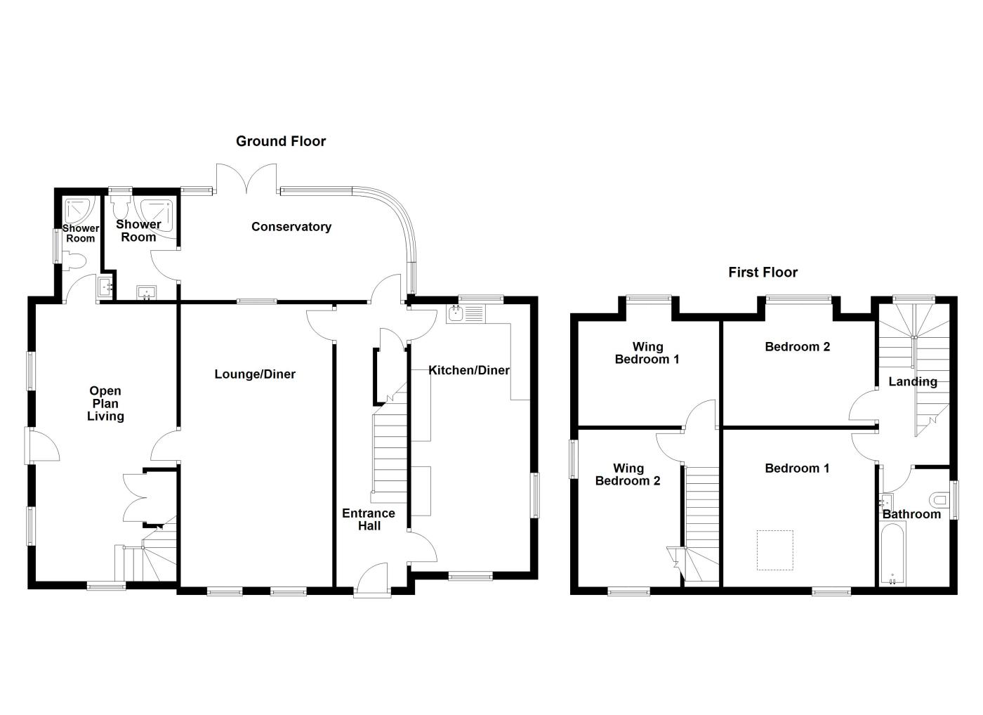
Summary of Accommodation

Main House

Entrance Hall
Cupboard housing electrics for main house and wing.
19' 8" x 5' 11"
(5.99m x 1.80m .)
Lounge
Interconnecting door to wing. Multi fuel stove.
23' 7" x 12' 8"
(7.19m x 3.86m .)
Conservatory
Appliances include Lec freezer, Indesit tumble dryer, Bosch washing machine.
18' 10" x 9' 2"
(5.74m x 2.79m .)
Shower Room
8' 9" x 5' 5"
(2.67m x 1.65m)
Kitchen/Diner
Appliances include Neff single oven with plate warmer and combi oven over, Neff ceramic hob with stainless steel extractor fan over, Bosh dishwasher and Statesman under counter fridge. Multi fuel fire.
22' 5" x 10' 0"
(6.83m x 3.05m .)

First Floor

Bedroom 2
12' 4" x 11' 4"
(3.76m x 3.45m)
Bedroom 1
13' 9" x 12' 4"
(4.19m x 3.76m)
Bathroom
10' 5" x 5' 11"
(3.17m x 1.80m)
Bedroom 1
13' 7" x 8' 6"
(4.14m x 2.59m)
Bedroom 2
12' 1" x 10' 2"
(3.68m x 3.10m)

Wing

Kitchen/Lounge/Diner
Appliances include Neff oven with Bosch hob ATAG extractor fan over, Hotpoint washing machine and Hotpoint slimline dishwasher, Indesit fridge and Neff freezer.
24' 3" x 11' 10"
(7.39m x 3.61m .)
Shower Room
8' 9" x 3' 7"
(2.67m x 1.09m)

Summerhouse

Main Area
13' 9" x 11' 10"
(4.19m x 3.61m)
Room 1
7' 1" x 6' 11"
(2.16m x 2.11m)
Room 2
7' 1" x 6' 11"
(2.16m x 2.11m)

Services

-
Mains electricity, water and drainage.

Price Includes

-
Floor coverings, curtains/blinds, appliances as listed and light fittings.

Possession

-
By arrangement.

Viewing

-
Strictly by appointment.

Please Note

-

If the recipient of these details should be party to negotiations or actions which seek to preclude, or are contrary to, the interests of CRANFORDS ESTATE AGENCY LTD, as selling agents, they may be liable for any fees which would otherwise have been due to CRANFORDS ESTATE AGENCY LTD.

These particulars do not constitute any part of an offer or contract. No responsibility is accepted as to the accuracy of these particulars or statements made by our staff concerning the above property. Any intending purchaser must satisfy himself to the correctness of such statements and particulars. All negotiations to be conducted.