Sleepy Hollow

Vale
Local Market
£695,000
Under Offer With Cranfords
4
2
1

Welcome to Sleepy Hollow, a charming and stylishly presented home perfectly positioned on the outskirts of The Bridge. Set on the convenient Lowlands Road, this property enjoys easy access to a wide range of local amenities, making everyday living wonderfully convenient. Thoughtfully upgraded throughout the years by the current owners, the home features generous living spaces including a modern kitchen which was renovated approximately one year ago, and offers partly renovated interiors that blend comfort with contemporary living. Inside, you’ll find three generously sized double bedrooms along with a versatile fourth bedroom or study, providing excellent flexibility for families or those working from home. To the rear, a private car port for one vehicle adds valuable off-street parking, while a gated entrance leads into the welcoming patio garden which is an ideal spot for relaxing or entertaining. Stylish, spacious, and conveniently located, Sleepy Hollow is the perfect family home. To arrange a viewing, please contact Cranfords on 243878.

Key Facts

4
2
1
  • Located Close To The Bridge Amenities
  • Ideal Family Home
  • Rear Car Port Parking For One Vehicle
  • Partly Renovated
  • Ample On Street Parking
  • Rear Patio & Grass Garden
  • New Velux Windows
  • New Kitchen
  • TRP 195
  • LR3344

Contact Cranfords to book a viewing

Call 01481 243878 or Contact Us

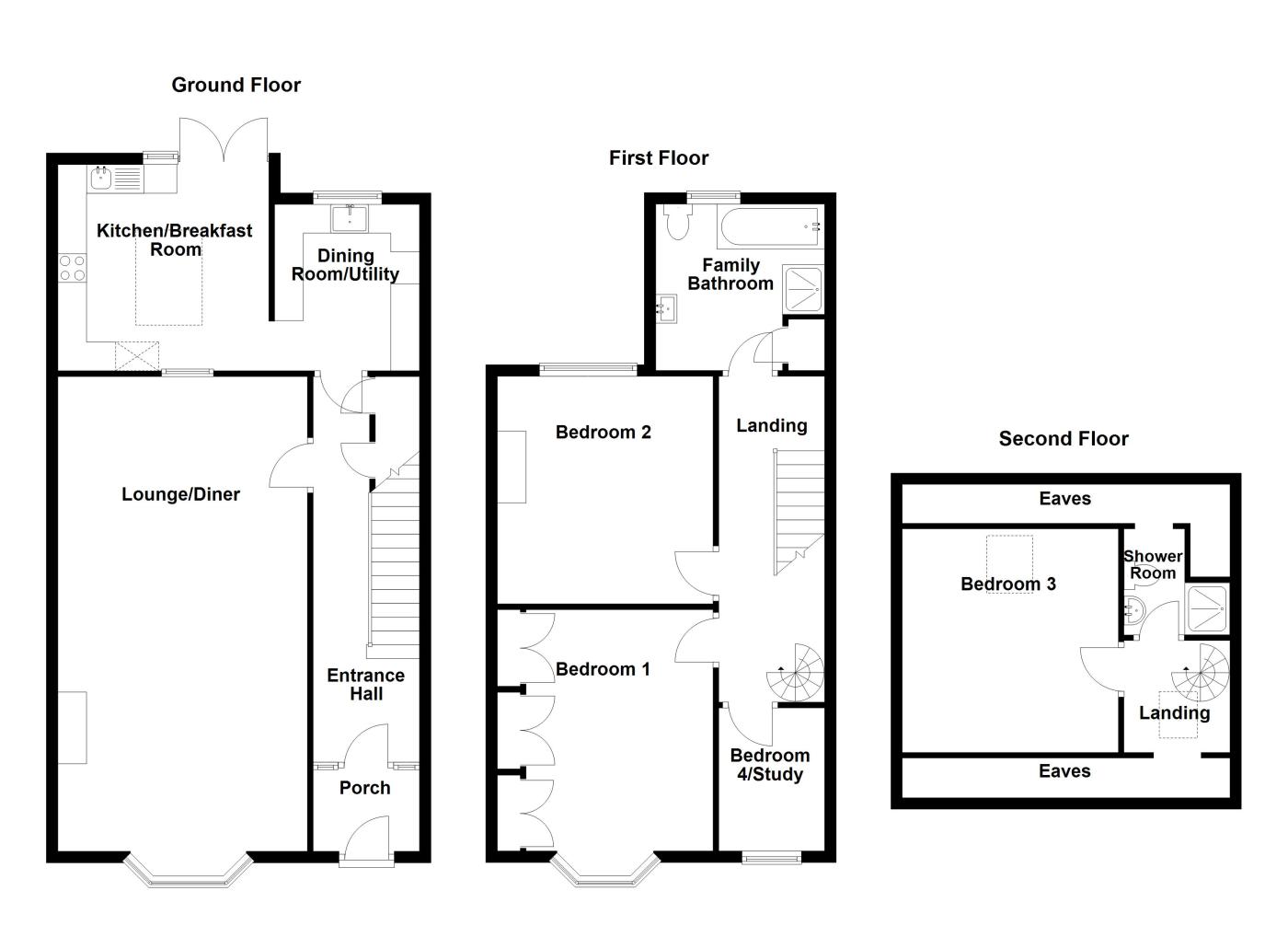
Summary of Accommodation

Ground Floor

Entrance Porch
6' 1" x 4' 9"
(1.85m x 1.45m)
Entrance Hall
20' 3" x 6' 2"
(6.17m x 1.88m)
Kitchen-Breakfast
Appliances include - AEG hob and oven, Blomberg washing machine, Hotpoint tumble dryer, Hisense American Style fridge/freezer, Neff extractor fan.
11' 9" x 11' 4"
(3.58m x 3.45m .)
Dining Room/Utility
9' 6" x 8' 3"
(2.90m x 2.51m)
Lounge-Diner
28' 8" x 13' 7"
(8.74m x 4.14m .)
Car Port
22' 2" x 8' 5"
(6.76m x 2.57m)

First Floor

Family Bathroom
9' 8" x 9' 6"
(2.95m x 2.90m)
Bedroom 1
15' 7" x 12' 1"
(4.75m x 3.68m)
Bedroom 2
Built in wardrobes.
13' 8" x 12' 1"
(4.17m x 3.68m .)
Bedroom 4/Study
8' 2" x 6' 2"
(2.49m x 1.88m)

Second Floor

Shower Room
7' 7" x 3' 4"
(2.31m x 1.02m)
Bedroom 3
Built in under eaves storage.
16' 5" x 13' 6"
(5.00m x 4.11m .)

Services

-
Oil central heating. Mains water and drainage.

Price Includes

-
Floor coverings, curtains/blinds, and light fittings. Appliances as detailed.

Possession

-
By arrangement

Viewing

-
Strictly by appointment

Please Note

-
If the recipient of these details should be party to negotiations or actions which seek to preclude, or are contrary to, the interests of CRANFORDS ESTATE AGENCY LTD, as selling agents, they may be liable for any fees which would otherwise have been due to CRANFORDS ESTATE AGENCY LTD.

These particulars do not constitute any part of an offer or contract. No responsibility is accepted as to the accuracy of these particulars or statements made by our staff concerning the above property. Any intending purchaser must satisfy himself to the correctness of such statements and particulars. All negotiations to be conducted.