Dimelo

Castel
Local Market
£850,000
Under Offer With Cranfords
3
2
5

Cranfords are delighted to present Dimelo to the local market. Set on an elevated plot in Castel, close to Les Beaucamps and Castel Schools, this recently upgraded family home offers style, space, and comfort. The ground floor features a brand-new bespoke kitchen and dining area that is fully underfloor heated, ideal for entertaining, alongside a spacious sitting room, study area, and family bathroom. Upstairs are three double bedrooms, including a master with en-suite shower room. Additional benefits include a single garage with utility area, a south-facing garden and patio, and parking for several vehicles. Dimelo is a rare opportunity to secure a beautifully presented home in a sought-after location. Early viewing is strongly recommended to appreciate all it has to offer.

Key Facts

3
2
5
  • True Move-in Condition
  • Rear Garden and Patio
  • Ample Parking
  • Recently Upgraded By Current Owners
  • Great Central Location
  • Single Garage
  • LR3323
  • TRP 201

Contact Cranfords to book a viewing

Call 01481 243878 or Contact Us

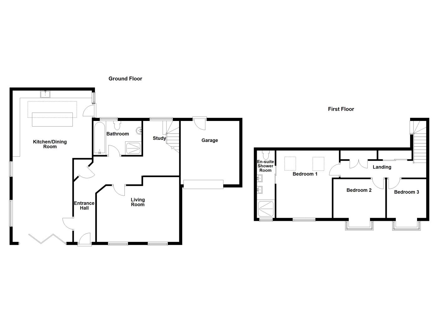
Summary of Accommodation

Ground Floor

Entrance Hall
Max.
13' 9" x 4' 9"
(4.19m x 1.45m)
Kitchen/Diner
Appliances include instant boiling tap, 5 ring gas Bosch hob & 2X Bosch oven, Bosch dish washer and Samsung fridge/freezer (available via separate negotiation) Under floor heated.
28' 6" x 17' 7"
(8.69m x 5.36m)
Bathroom
10' 6" x 7' 7"
(3.20m x 2.31m)
Living Room
Under floor heated.
18' 3" x 14' 2"
(5.56m x 4.32m)
Study/Under Stairs Storage
11' 3" x 9' 0"
(3.43m x 2.74m)

First Floor

Bedroom 3
11' 6" x 8' 9"
(3.51m x 2.67m)
Bedroom 2
11' 6" x 9' 2"
(3.51m x 2.79m)
Bedroom 1
14' 9" x 11' 2"
(4.50m x 3.40m)
En-suite Shower Room
11' 2" x 4' 1"
(3.40m x 1.24m)

Services

Mains Electricity and water and drainage. Electric central heating.

Price Includes

Floor coverings, curtains/blinds, and light fittings. Appliances as detailed.

Possession

By arrangement.

Viewing

Strictly by appointment.
-
If the recipient of these details should be party to negotiations or actions which seek to preclude, or are contrary to, the interests of CRANFORDS ESTATE AGENCY LTD, as selling agents, they may be liable for any fees which would otherwise have been due to CRANFORDS ESTATE AGENCY LTD.

These particulars do not constitute any part of an offer or contract. No responsibility is accepted as to the accuracy of these particulars or statements made by our staff concerning the above property. Any intending purchaser must satisfy himself to the correctness of such statements and particulars. All negotiations to be conducted.